Advertisement

以Autocad專為工程,室內設計,鐵器承接繪圖服務

專業服務.$500 - 1200 / 按項目計酬 Project-Based

-擁有實戰經驗

曾有下以工作經驗

1.工程

有關ElV assistant engineer, Curtain wall 玻璃幕牆:工件,平面3D,施工大樣繪圖以及中電地下電纜工程施工大樣繪圖&QS 繪圖上單

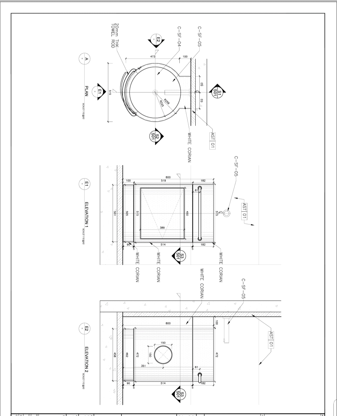
2.室內設計

單位平面,切面,大樣

傢俬平面,切面,大樣

回應