Advertisement
Freelance繪圖。室內平立面圖。 傢俬圖大樣圖<<專業可靠、快速、精準、用心>>
專業服務.$500 - 1000 / 按件計酬 / Piecework
繪制Autocad圖基本價格如下:
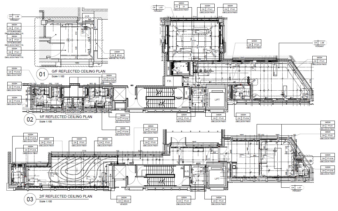
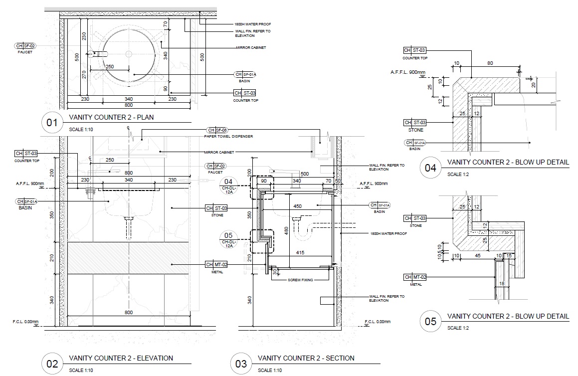
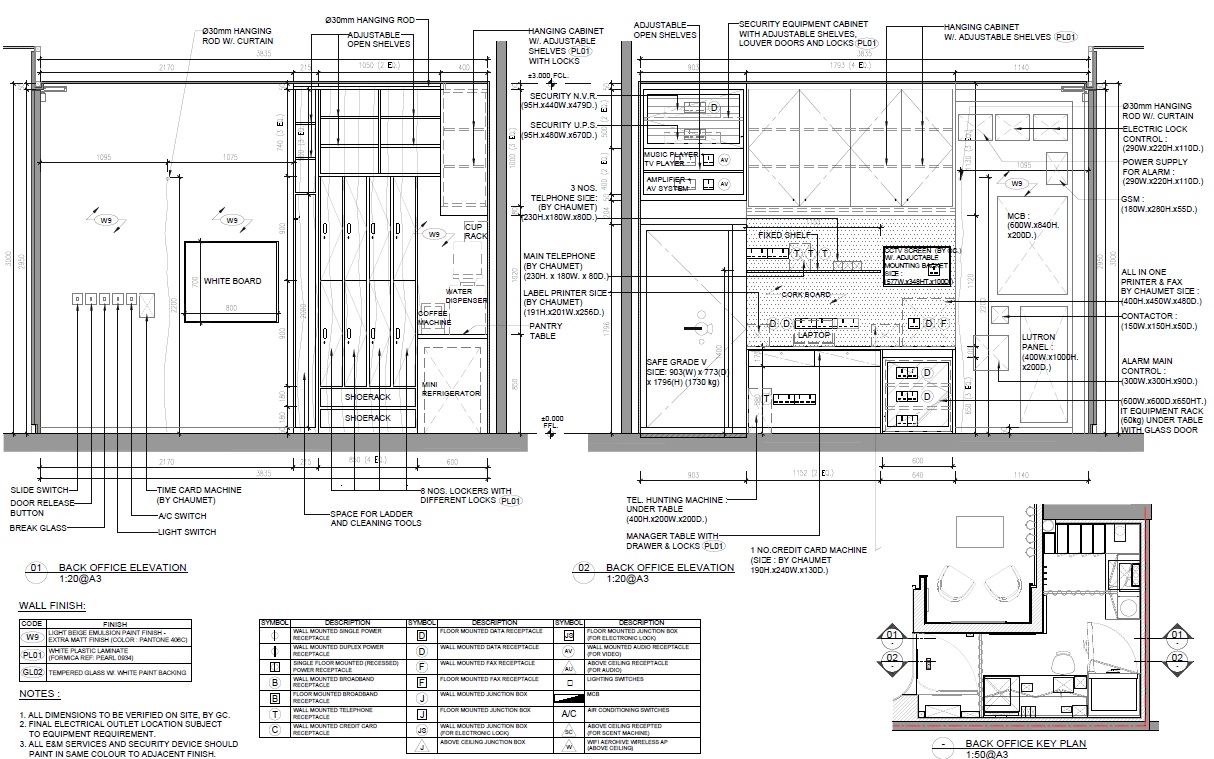
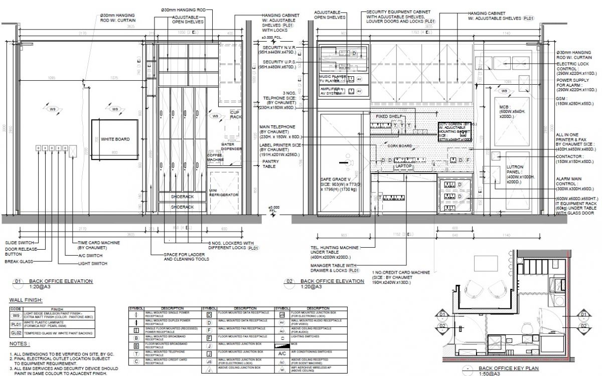
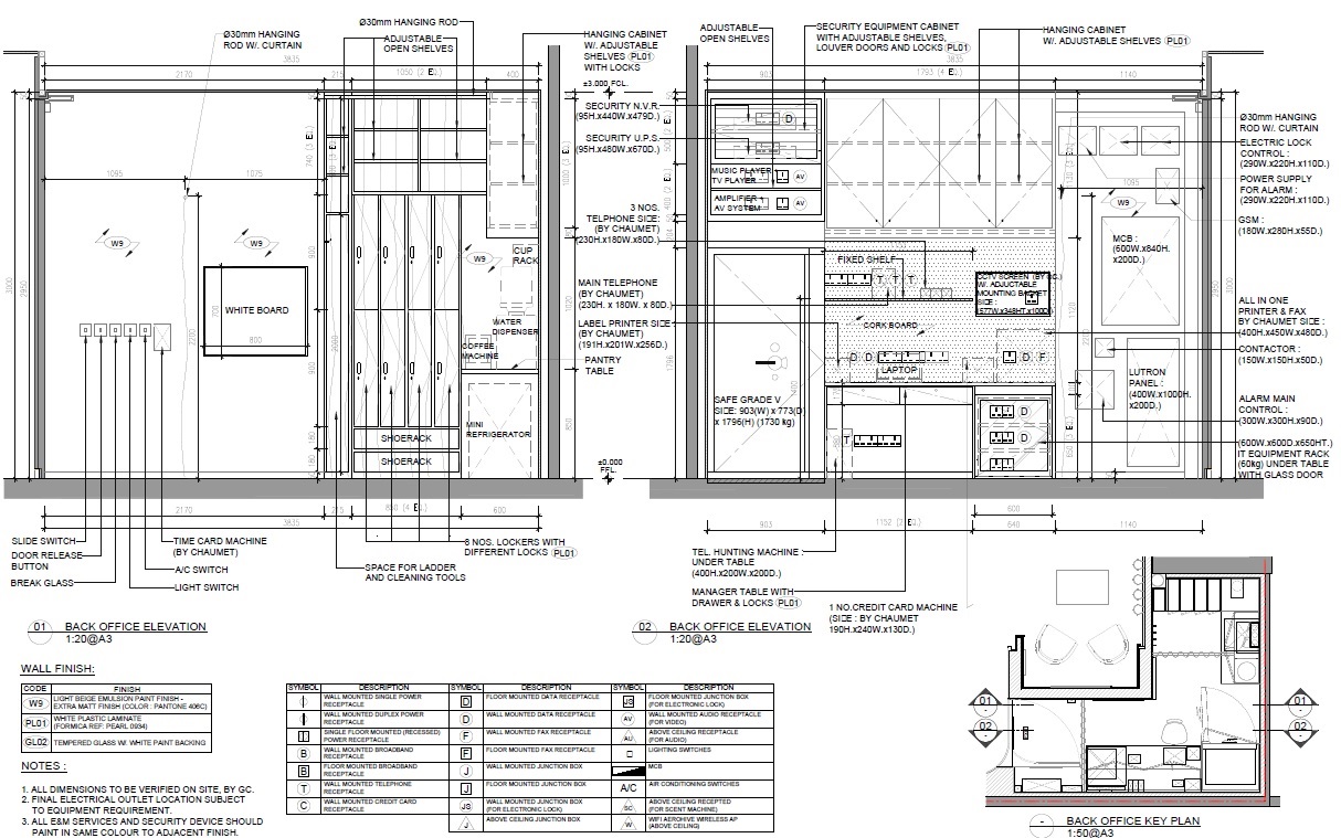
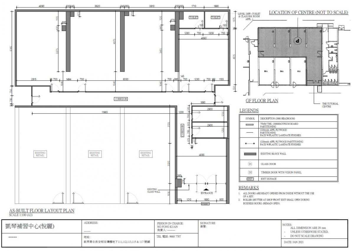
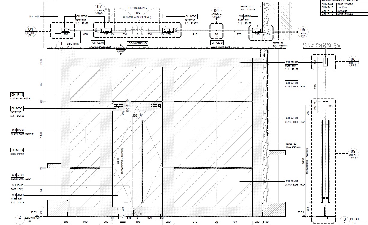
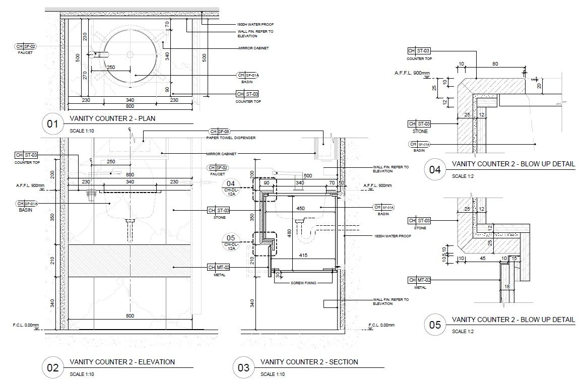
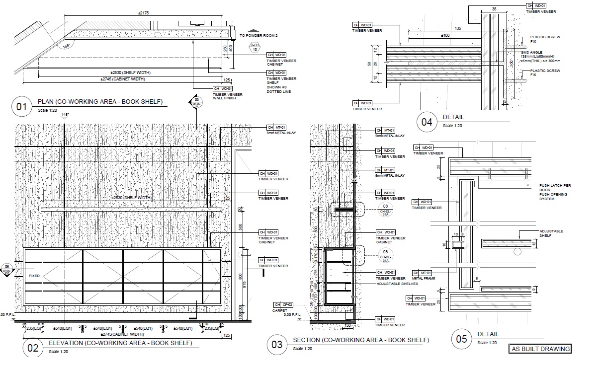
Layout Plan平面配置圖 — 每張$500
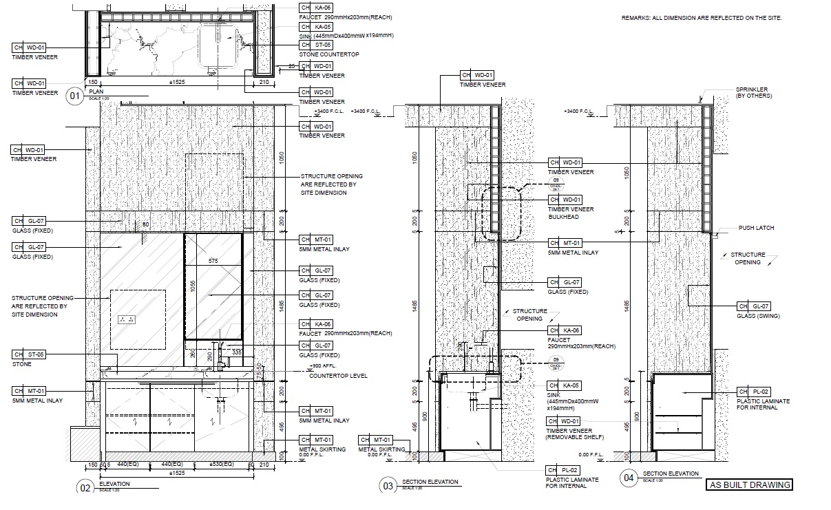
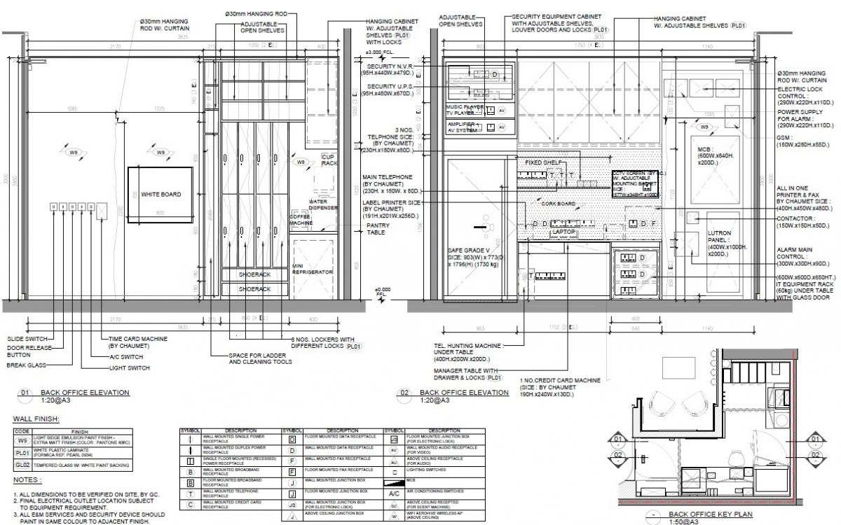
Elevation 立面圖 — 每張$500
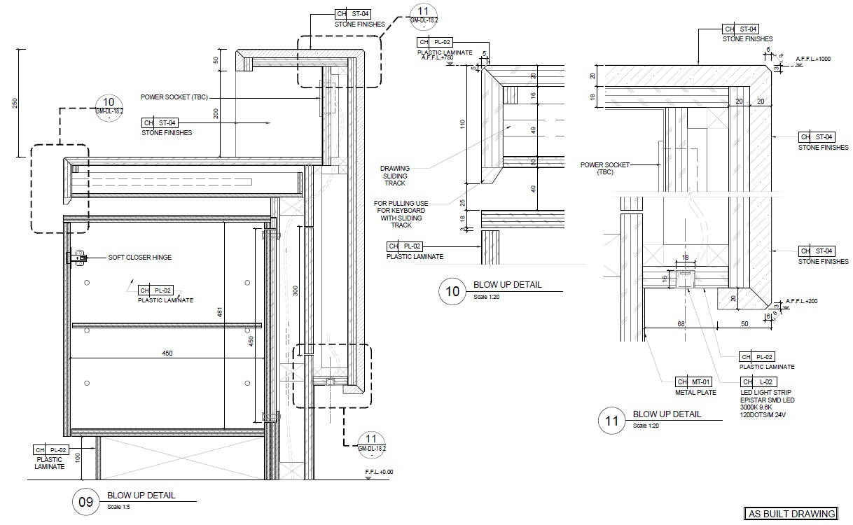
施工圖 /傢俬圖 — 每張$650
可到地盤度尺 (收費另議)
**如設計複雜,需另行報
聯絡人
Terence Chow (周先生)
聯絡電話
(852) 60672393
_______________________________________________________________________________________________
1.請將設計資料(CAD文件,相機角度,空間高度,設計說明以及物料樣板圖片,參考圖片,手畫透視)及要求發送到郵箱(,資料越詳細越好,亦可通過whatsapp與我們聯繫。
2.報價:根據您提供的設計資料,我們會盡快給您一個合理的報價及交付成圖時間。
3.定金:當您確定報價後,請支付50%的訂金,我們才會進入項目制作階段。
4.預覽:制作完成後我們會先發送預覽圖給客戶修定,我們的收費還包括2次預覽圖修改,這2輪修改不包括大量的模型重建,角度變更。
5.成圖:預覽圖確定後,我們會立即幫您出成圖,待收到50%餘額,我們會立即發送最終圖像給你。
我們將通過電子郵箱發送JPG或者PDF格式成圖給您。成圖解析度可以達到A3列印
6.改圖:出大圖後修改需要收取修改費用。(如果是我們的問題我們將免費修改) 局部小修改酌情可以免費。
*客人提供特定物件的款式參考 我們會根據實際建模難度 選擇使用接近的庫存模型。
*最終效果圖的顏色可能與客戶的顏色有誤差, 因為不同的顯示器及打印機也會輸出不同的顏色。
回應









