Advertisement
曾思樺
+ 關注
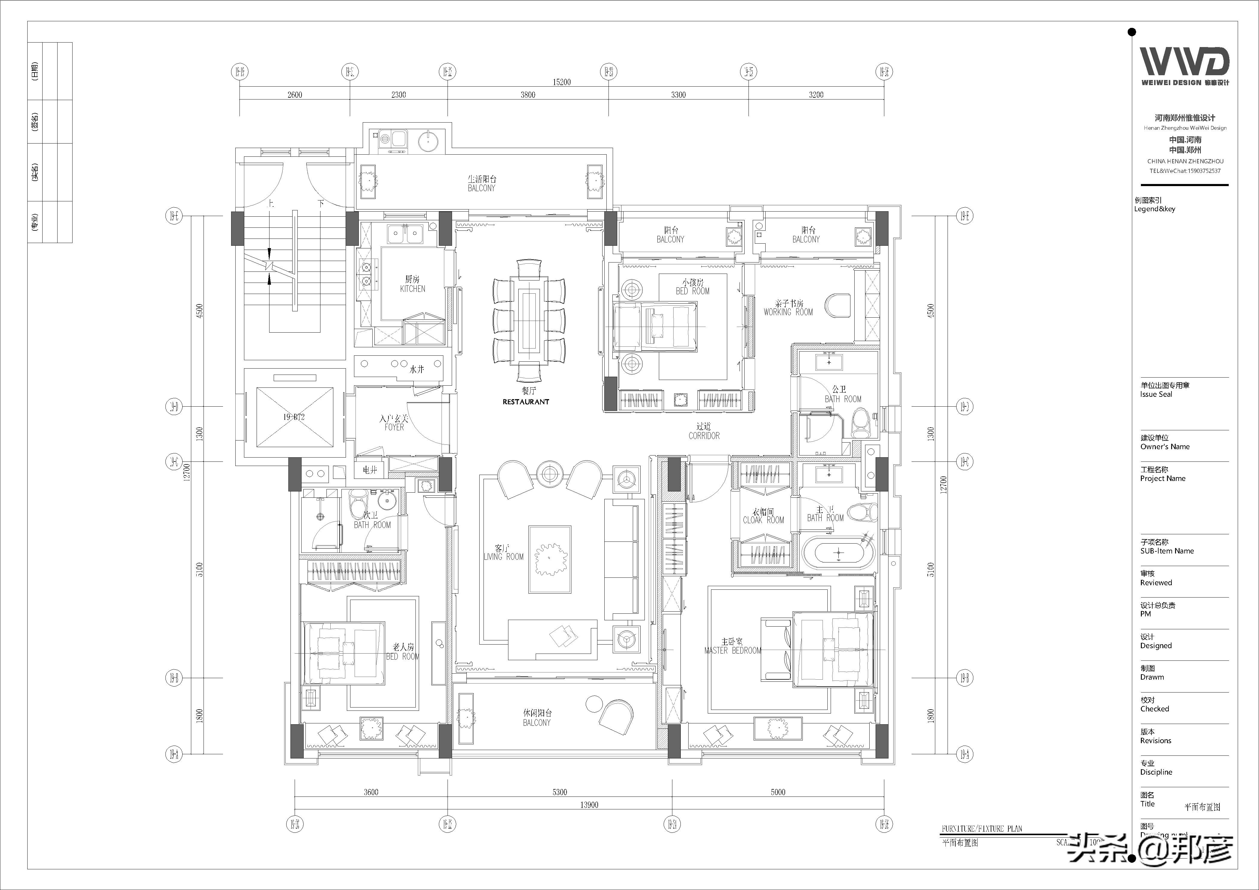
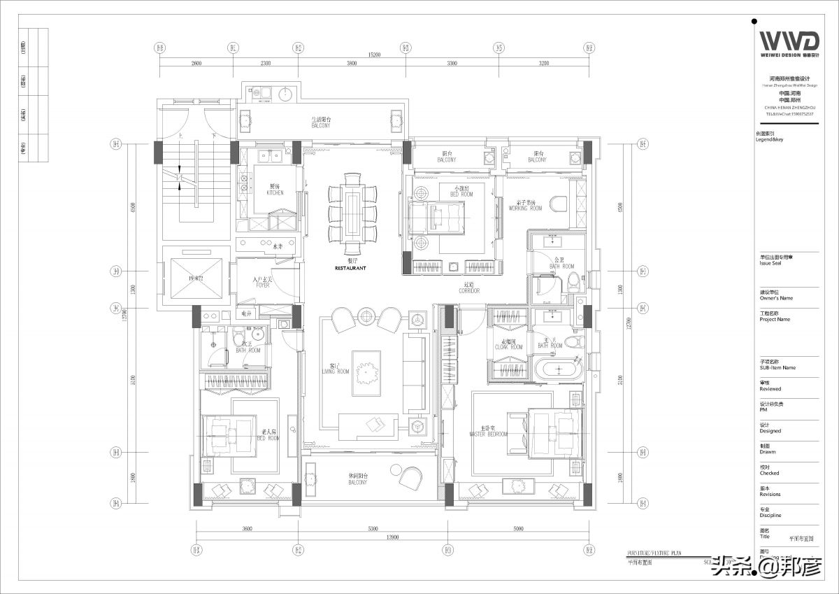
室內施工圖
曾思樺
2021/12/18
+ 關注
專業服務.$500 - 800
回應
發送信息聯繫 曾思樺